avunda

Семейные виллы | 291 и 210 м²

Данные

Тип объекта
Семейные виллы
Площадь помещений
291 и 210 м²
локация
Крым, г. o. Ялта, п. Партизанское
Площадь участков
10 и 6 соток
Команда проекта
Бойко С., Бусленко А., Кошарный П., Войнов С., Шолян А.
СТАТУС
Строительство

Пожелания клиента

Клиент обратился с задачей разместить два дома — для себя и родителей — на соседних участках с выраженным перепадом высот.
Основное пожелание — сделать оба дома визуально одноэтажными и максимально удобными для повседневного использования, избегая лестниц внутри помещений. Также в проект необходимо было включить баню, террасы и гаражи, а участок предусматривал видовые характеристики и полное взаимодействие с ландшафтом.

Дополнительную сложность представляло отсутствие организованного подъезда, что требовало гибкости в формировании рельефа и логистики на участке.

Наше решение

В основу проекта легло решение растянуть дом клиента по рельефу, разделив функции по уровням, и создать максимально комфортную и приватную среду для жизни.
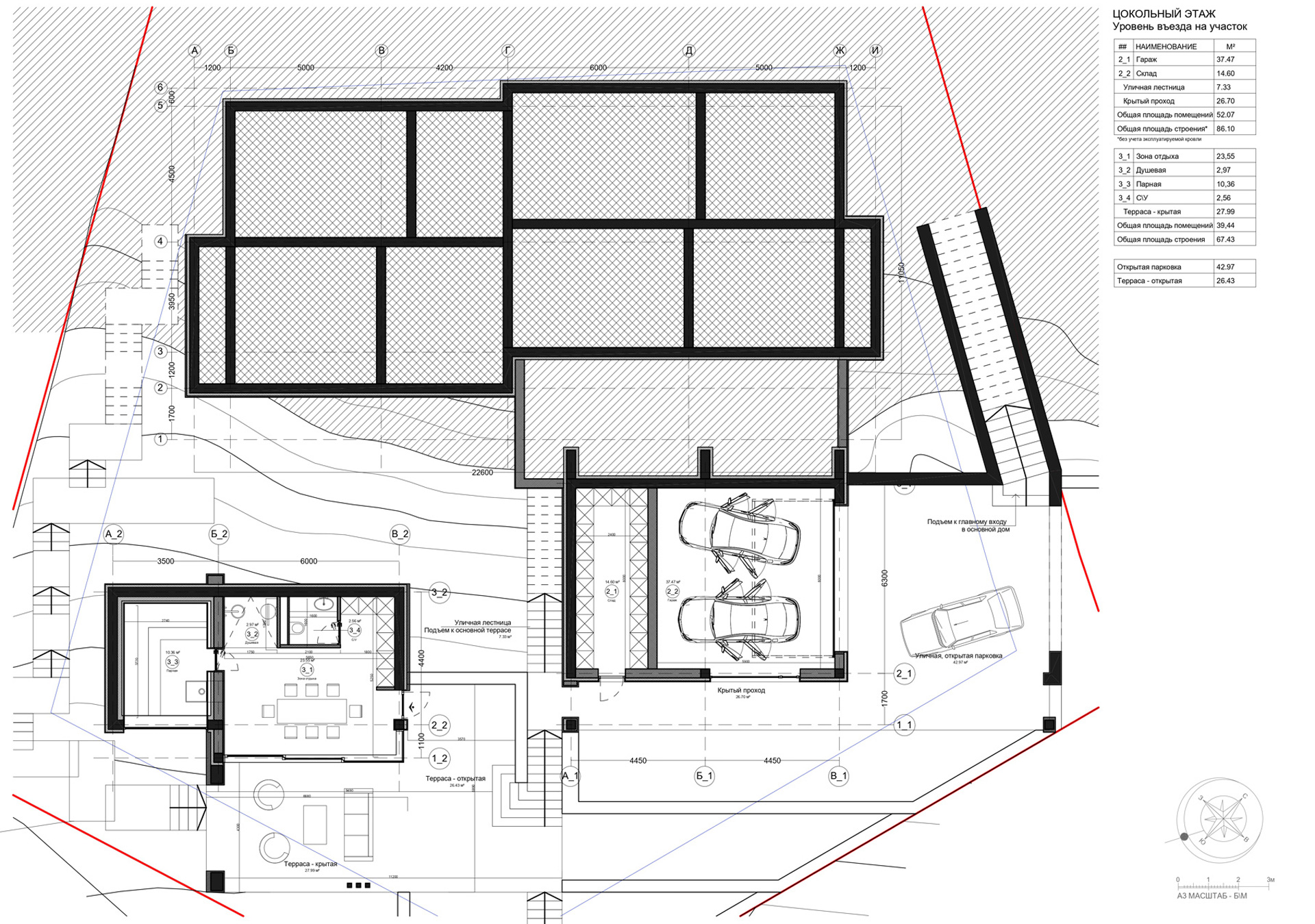
Въездной уровень заняли открытая парковка и гараж с хозяйственным блоком, над которым расположилась панорамная терраса. Основной жилой объем поднят на верхний уровень, а баня разместилась на нижнем — с отдельной террасой и видом на заповедник. У дома родителей участок удалось выровнять, что позволило сделать цельный одноэтажный объем.

Формирование удобных лестничных и пешеходных маршрутов позволило соединить все уровни с плавными перепадами и минимальным физическим усилием.

Фактуры

Для проекта были выбраны материалы, подчеркивающие природную эстетику и стилистику современного средиземноморья.
Фасады выполнены из бутового камня с бесшовной кладкой, белой штукатурки и дерева. Большие кровельные свесы переходят в перголы, создавая тень и архитектурную пластичность. Оконные рамы окрашены в цвет дерева, дополняя тёплую палитру.

Фактурные материалы перекликаются между интерьером и экстерьером — дерево, камень и светлая штукатурка переходят внутрь, визуально объединяя внутренние и внешние пространства и размывая границу между домом и природой.

Планировки

Планировка организована с учётом логики рельефа и максимального раскрытия к видам и приватным зонам.
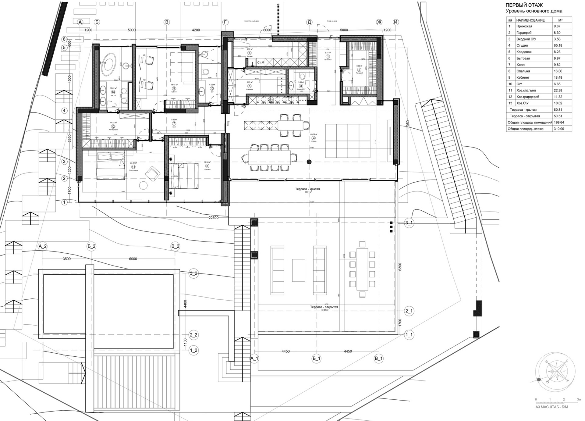
У дома клиента — три уровня: средний с гаражом и парковкой, верхний с основным жильём, нижний с баней. Пространство дома делится на общественную (гостиная, кухня, столовая), техническую (кладовая, котельная, постирочная) и приватную зоны (мастер-блок, кабинет, гостевая спальня). Входная зона открывает вид на панорамное остекление и террасу.

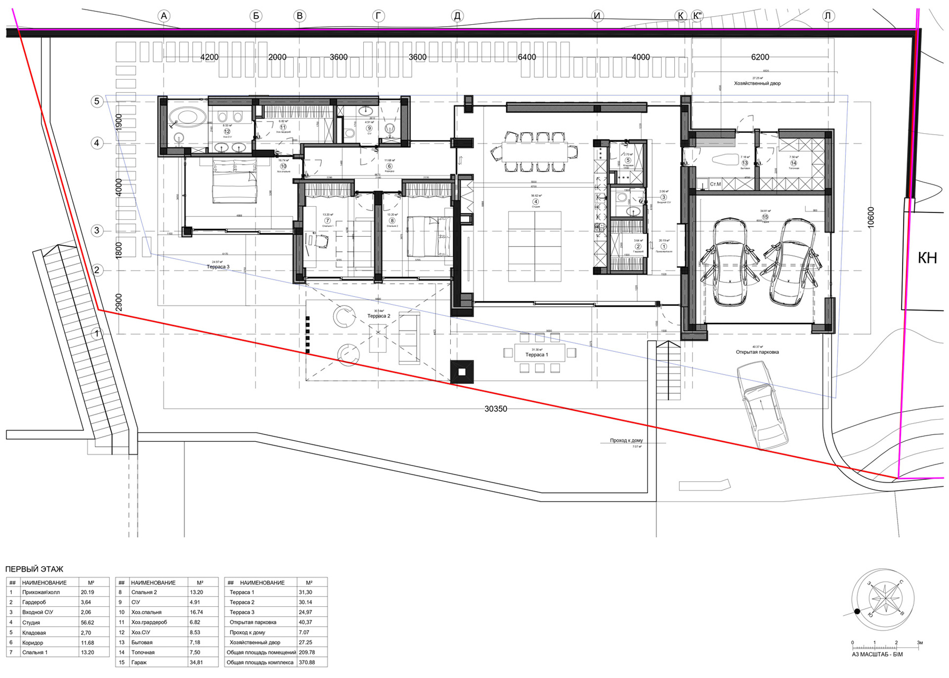
Дом родителей имеет чёткое деление: техническая зона с гаражом, постирочной, котельной; общественная — с островной группой и кладовой; и приватная зона с мастер-блоком и кабинетом. Все спальни имеют выходы на террасы, зонированные бутовыми стенами и навесами.
Основной дом
Дом для родителей
Другие проекты
Скачайте расценки проектирования и постройки дома
– таблицы с подробным описанием этапов проектирования
– примеры реализованных разделов, чтобы вы могли оценить качество нашей работы
– стоимости работ
СКАЧАТЬ РАСЦЕНКИ
PDF, 12 страниц, 3.3 МБ
PDF
Актуально на 29 апреля 2025 года