cembalo village

Частная вилла | 417 м²

Данные

Тип объекта
Частная вилла
Площадь помещений
417 м²
локация
Крым, г. Балаклава
Площадь участков
16 соток
Команда проекта
Бойко С., Бусленко А., Кошарный П., Войнов С., Шолян А.
СТАТУС
Проект

Пожелания клиента

Когда к нам обратились заказчики, они уже имели представление о том, каким должен быть их будущий дом.
Клиенты — большая, многодетная семья, которая хотела просторный дом с большим количеством спален и помещений для хранения и отдыха. Визуально они мечтали о доме в духе средиземноморской архитектуры — с черепичной крышей, натуральными материалами и светлым фасадом, который вписывался бы в атмосферу Балаклавы.

При этом архитектура не должна была выглядеть громоздкой — клиентам хотелось, чтобы дом “садился” в рельеф, а не возвышался над ним. Важной задачей также стало рациональное использование рельефа и организация дворовой жизни — с бассейном, садами, тихими и активными зонами для всей семьи.

Наше решение

Мы начали работу с выезда на участок — важно было понять, как ведёт себя рельеф, как “движется” солнце в течение дня и какие точки на участке особенно ценные по видам.
Основной задачей было избежать ощущения массивности дома. Мы приняли решение “разложить” его на несколько объёмов и тем самым снизить масштаб. Разделение на блоки дало возможность грамотно зонировать функции и адаптировать архитектуру под сложный рельеф.

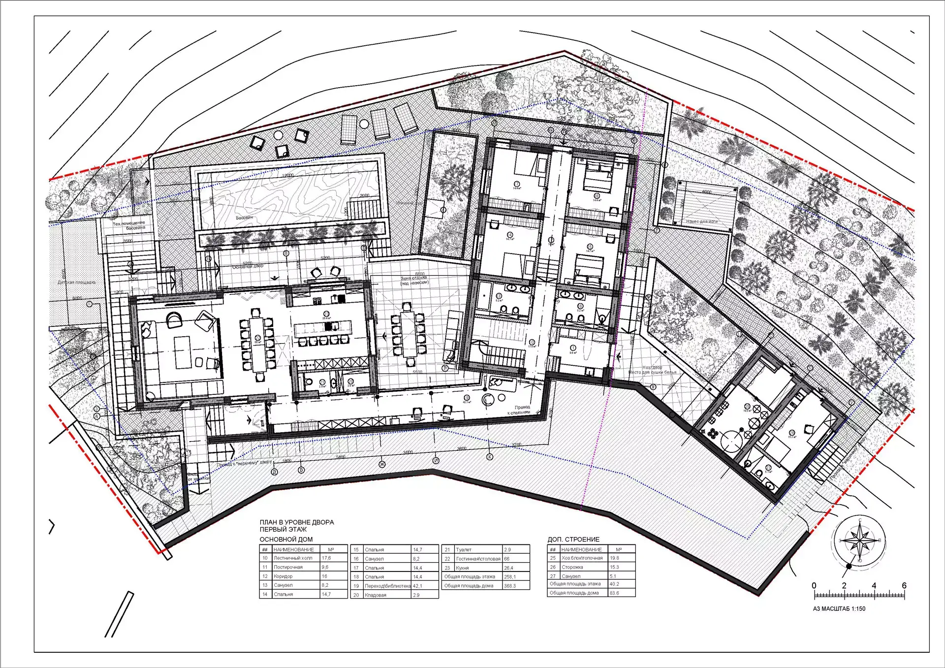
Особое внимание мы уделили вертикальной планировке: появился верхний двор на уровне дороги — для въезда и входа в дом — и нижний, основной двор с террасами, бассейном и садом. Такое решение позволило сделать архитектуру более лёгкой визуально, несмотря на большой объём, а со стороны улицы все дома выглядят как одноэтажные.

Форма

Объёмы строений продиктованы как функциональной логикой, так и рельефом участка.
Всего в проекте — три основных объёма. Один из них — автономный, с гаражом и комнатой для персонала, два других соединены цокольной галереей. Такой приём позволил органично вписать все необходимые помещения, сохранить приватность и при этом обеспечить логичную планировочную связь между частями дома.

Со стороны дороги верхний уровень выглядит лаконично и компактно, но за счёт перепада рельефа архитектура раскрывается во внутренний двор. Визуально мы стремились к лёгкости — форма кровель, фронтоны и пропорции окон взяты из средиземноморской архитектуры, но очищены от лишнего декора. Простые линии, чистые поверхности и ритмичные оконные проёмы создают цельный и спокойный образ.

Фактуры

Материалы были выбраны в духе средиземноморской архитектуры — тёплые, натуральные, тактильные.
Основными материалами стали светлая штукатурка, местный бутовый камень, терракотовая черепица и деревянные ставни. Такое сочетание делает дом тёплым и дружелюбным, а также связывает его с ландшафтом. В мощении использован известняк, а деревянные элементы подчёркивают теплоту и южный характер проекта.

В горизонтальных архитектурных элементах — свесах и подшивках — использованы фальцевые листы, которые добавляют современности и контраста в текстурах. Все материалы подобраны так, чтобы со временем они старели красиво, не требуя постоянного ухода.

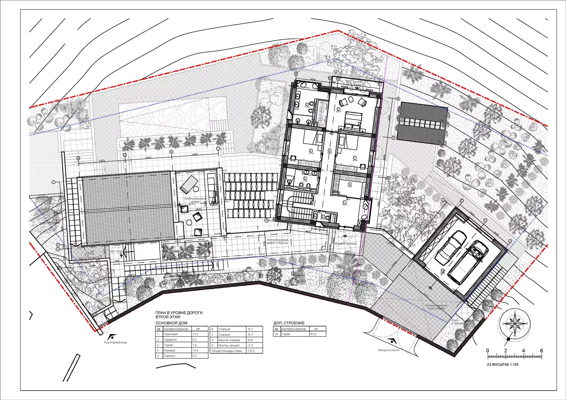
Планировки

Планировочная структура подчинена рельефу и образу жизни семьи.
На въездном уровне располагается автономный объём с навесом, гаражом и помещениями для персонала. Через цокольный этаж он связан с основным домом, состоящим из двух блоков: спального и общественного. Спальный блок — двухэтажный: на верхнем уровне мастер-спальня и две детские, на нижнем — ещё четыре спальни и хозблок с постирочной.

Блок гостиной — одноэтажный, с высоким потолком и выходом на открытую террасу перед бассейном. Кухня отделена от гостиной, но визуально связана с внутренним двориком — здесь спрятана уютная терраса с уличной столовой.

В доме много нюансов: от шведской лестницы и эркеров с глубокими подоконниками до функциональных окон в санузлах и барной стойки, переходящей из кухни наружу. Все эти детали делают большой дом не только удобным, но и очень живым, наполненным моментами настоящей жизни.
Другие проекты
Скачайте расценки проектирования и постройки дома
– таблицы с подробным описанием этапов проектирования
– примеры реализованных разделов, чтобы вы могли оценить качество нашей работы
– стоимости работ
СКАЧАТЬ РАСЦЕНКИ
PDF, 12 страниц, 3.3 МБ
PDF
Актуально на 29 апреля 2025 года