Villa Radiante

Частная вилла | 250 м²

Данные

Тип объекта
Частная вилла
Площадь помещений
250 м²
локация
Крым, г. Алушта, c. Лучистое
Площадь участков
15 соток
Команда проекта
Бойко С., Бусленко А., Кошарный П., Войнов С., Шолян А.
СТАТУС
Строительство

Пожелания клиента

Клиент обратился с задачей спроектировать дом для комфортной жизни в Крыму.
Основное пожелание — современный дом для постоянного проживания, органично вписанный в участок с видом на море и долину. Важным условием стало размещение всех ключевых зон — террасы, бассейна, бани и гаража — в панорамной части участка.

Дополнительно требовалось предусмотреть отдельный гостевой дом, который юридически не подпадал бы под категорию сдаваемого жилья. Особое внимание заказчики просили уделить безбарьерной среде: плавные пандусы, отсутствие ступеней и удобные дорожки по всему участку.

Наше решение

Основой проекта стало максимальное использование природных видов.
Мы провели анализ видовых точек и расположили основные помещения дома так, чтобы каждое из них раскрывало пейзаж. Террасу приподняли до уровня пола первого этажа, чтобы соединить её с бассейном в единую открытую зону отдыха.

Гаражная крыша стала дополнительной смотровой террасой. Гостевой дом мы разместили отдельно и стилистически объединили с основным, соблюдая при этом нормативные ограничения. Общая композиция участка подчинена логике движения и удобства.

Форма

Архитектурный образ дома строится на ощущении лёгкости, контраста и баланса.
Первый этаж — массивный, облицованный камнем, второй — светлая консольная конструкция, визуально «парящая» над участком. Такое решение подчеркивает разграничение функциональных зон и создаёт характерный архитектурный образ.

Металлические двутавры, использованные для опоры террасы, облегчают восприятие второго этажа. Архитектура минималистична, с элементами средиземноморского характера — прямые линии, ясные объёмы, открытые террасы.

Фактуры

Фактуры проекта формируют тактильный и визуальный образ спокойной архитектуры.
Внешняя отделка выполнена в светлых тонах: гладкая белая штукатурка, натуральный камень, структурный бетон. Эти фактуры подчёркивают чистоту форм и создают игру света и тени.

Покрытие террас выполнено из керамогранита, дорожки — из камня и гравия. Такой подход обеспечил ощущение природной связности между архитектурой и ландшафтом, создавая комфортную и спокойную атмосферу на участке.

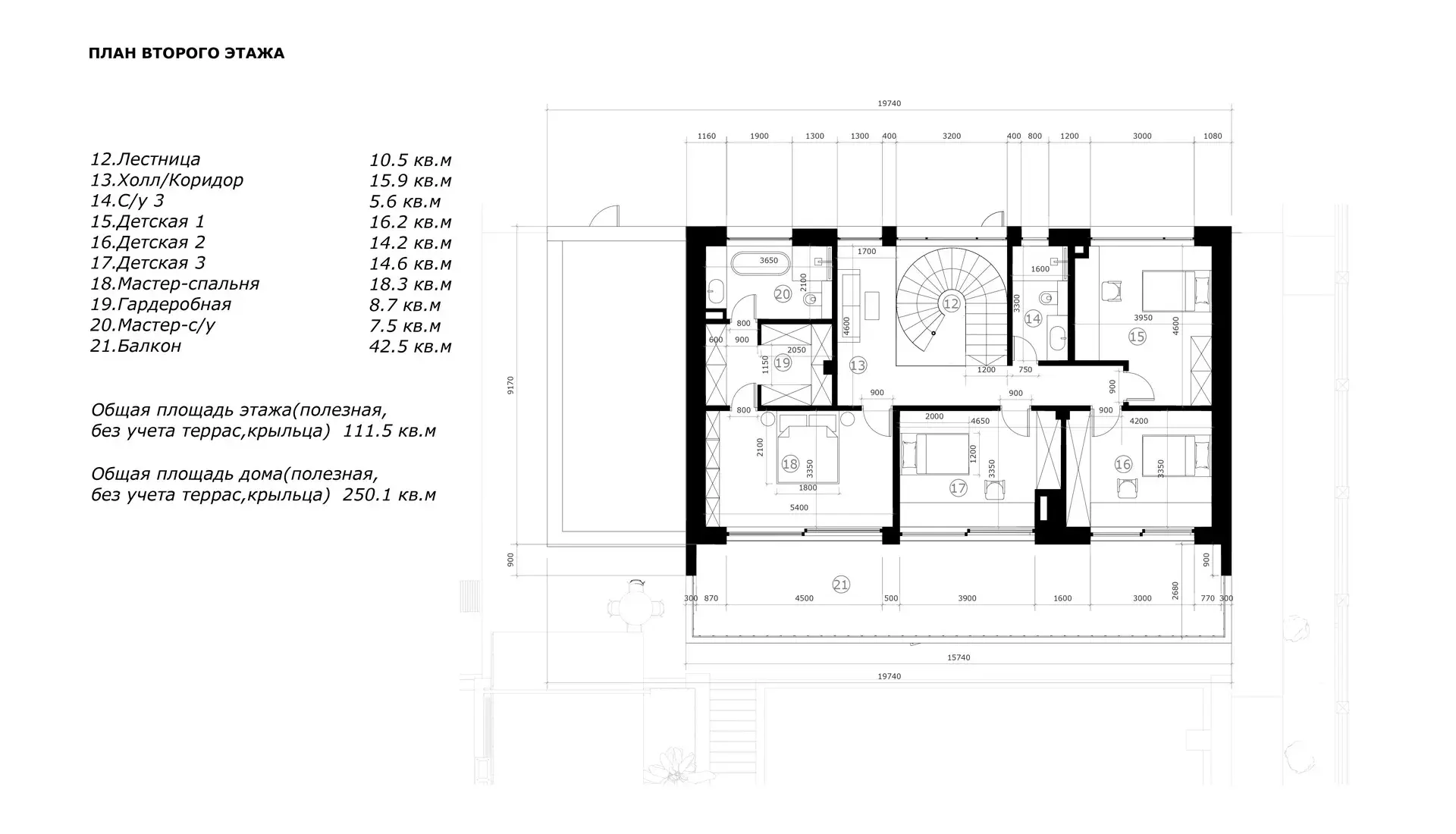
Планировки

Планировка организована вокруг видов и функциональной логики.
Первый этаж объединил кухню, гостиную и столовую в единую открытую зону с выходом на террасу и бассейн. Благодаря панорамному остеклению, основные помещения раскрыты в сторону моря и долины.

На втором этаже расположены спальни, каждая с направлением на пейзаж. Участок условно разделен на активную зону — с патио, баней, бассейном и террасой — и тихую, садовую, для уединённого отдыха. Пространство получилось цельным и гибким в использовании.
Основной дом
Дополнительное строение
Другие проекты
Скачайте расценки проектирования и постройки дома
– таблицы с подробным описанием этапов проектирования
– примеры реализованных разделов, чтобы вы могли оценить качество нашей работы
– стоимости работ
СКАЧАТЬ РАСЦЕНКИ
PDF, 12 страниц, 3.3 МБ
PDF
Актуально на 29 апреля 2025 года