Проекты домов
Услуги
Построено
Манифест
Компания
Контакты
+7 (978) 714 64 36
Связаться в Telegram
Связаться в WhatsApp
Рассчитать стоимость
Проектирование домов
Дизайн-проект интерьера
Коттеджные посёлки
Ландшафтный дизайн
Авторский надзор
Строительство домов
О компании
Новости
Вакансии
Рассчитать стоимость
Проекты
Услуги
В стройке
Компания
Контакты
Телеграм-канал
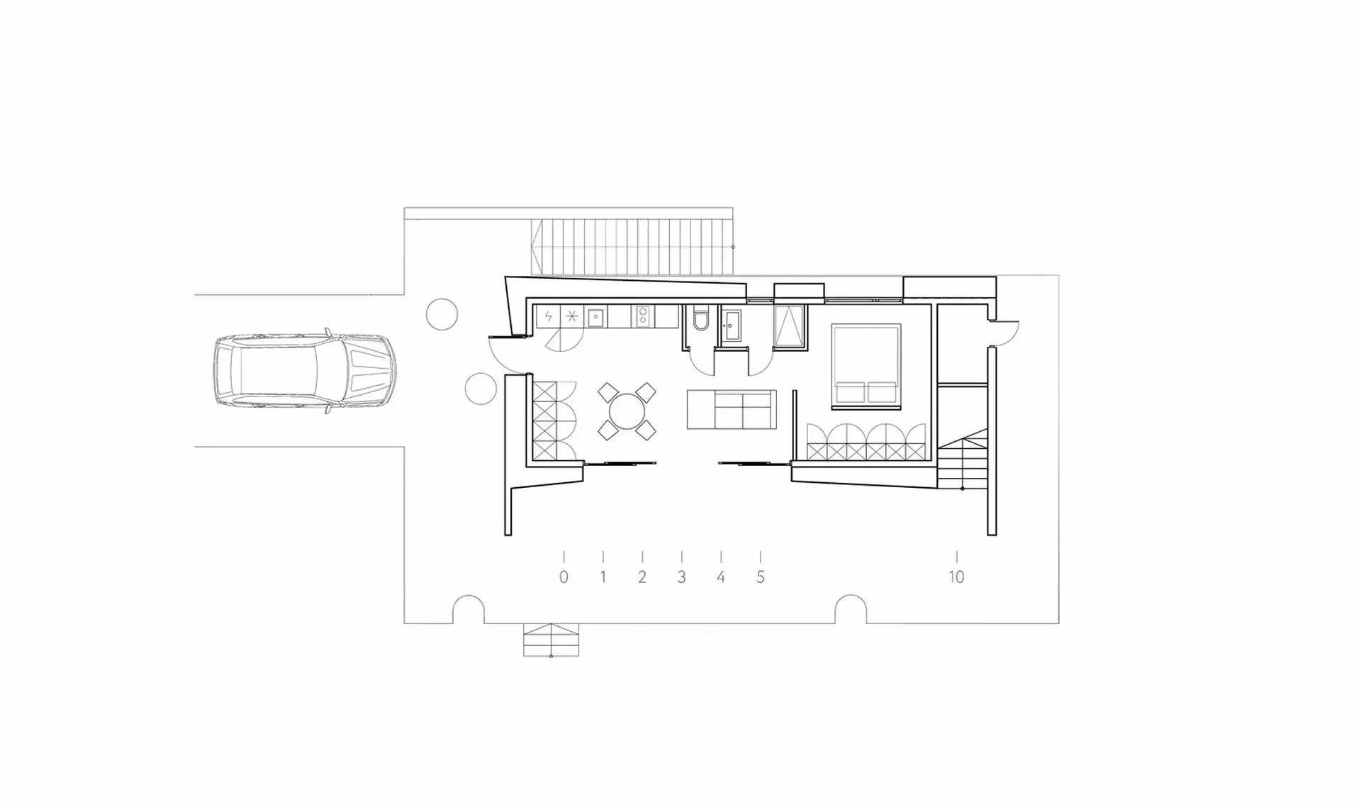
minimal house
Частная вилла | 50 м²
Данные
Тип объекта
Частная вилла
Площадь помещений
50 м²
локация
Крым, г. Алушта, п. Семидворье
Площадь участка
10 соток
Команда проекта
Бойко С., Войнов С., Шолян А.
СТАТУС
Проект
Планировочное решение
Планировочное решение
Другие проекты
Villa Eiren | 241 м²
Крым, г. Ялта, пгт. Гурзуф
Cembalo Village | 417 м²
Крым, г. Балаклава
Villa Helgi | 139 м²
Крым, г. Севастополь
Villa Lukull | 147 м²
Крым, г. Севастополь, c. Андреевка
Villa Mediterra | 288 м²
Крым, г. Симферополь, с. Пионерское
Villa Kermen
Крым, Бахчисарайский р-н, с. Табачное
Avunda | 291 м² и 210 м²
Крым, г. o. Ялта, п. Партизанское
Villa Soleada | 257 м²
Крым, Ленинский р-н, с. Щёлкино
Qoş Degirmen | 162 м²
Крым, г. Бахчисарай, с. Предущельное
Villa Kalendo | 388 м²
Крым, г. Севастополь, с. Подгорное
Soul House #1 | 348 м²
Крым, г. Ялта, пгт. Гурзуф
Soul House #2 | 427 м²
Крым, г. Ялта, пгт. Гурзуф
Скачайте расценки проектирования и постройки дома
– таблицы с подробным описанием этапов проектирования
– примеры реализованных разделов, чтобы вы могли оценить качество нашей работы
– стоимости работ
СКАЧАТЬ РАСЦЕНКИ
PDF, 12 страниц, 3.3 МБ
PDF
Актуально на 29 апреля 2025 года