Проекты домов
Услуги
Построено
Манифест
Компания
Контакты
+7 (978) 714 64 36
Связаться в Telegram
Связаться в WhatsApp
Рассчитать стоимость
Проектирование домов
Дизайн-проект интерьера
Коттеджные посёлки
Ландшафтный дизайн
Авторский надзор
Строительство домов
О компании
Новости
Вакансии
Рассчитать стоимость
Проекты
Услуги
В стройке
Компания
Контакты
Телеграм-канал
ARKTUR
Частная вилла | 400 м²
Данные
Тип объекта
Частная вилла
Площадь помещений
400 м²
локация
Крым, г. Алушта, п. Семидворье
Площадь участка
15 соток
Команда проекта
Бойко С., Бусленко А., Крицкий И., Войнов С., Шолян А.
СТАТУС
Строительство
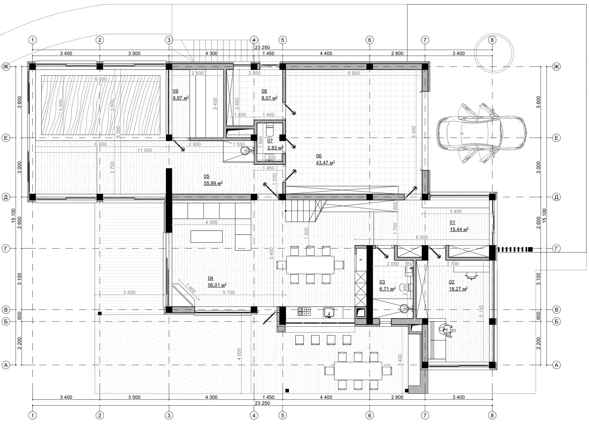
План 1 этажа
План 2 этажа
План 1 этажа
План 2 этажа
Другие проекты
Cloud House | 236 м²
Крым, г. о. Алушта, с. Лучистое
Casa Alpino | 405 м²
Крым, г. Алушта, c. Семидворье
Villa Lithos | 283 м²
Крым, г. Симферополь, с. Лозовое
Cembalo | 459 м²
Крым, г. Севастополь, СТ "Фиолент"
Gorun | 422 м²
Крым, г. Симферополь, с. Мирное
Villa Kutar | 193 м²
Крым, г. Севастополь, c. Тыловое
Villa Rakodia | 644 м²
Крым, г. Симферополь, с. Мирное
Arktur | 400 м²
Крым, г. Алушта, п. Семидворье
Violente House | 111 м²
Крым, г. Севастополь, мкр -н. Фиолент
Mamaq House | 191 м²
Крым, г. Симферополь, с. Строгоновка
Villa Alma | 326 м²
Крым, г. Бахчисарай, с. Нововасильевка
Villa Fiolent | 210 м²
Крым, г. Севастополь, мыс Фиолент
Скачайте расценки
проектирования и постройки дома
– таблицы с подробным описанием этапов проектирования
– примеры реализованных разделов, чтобы вы могли оценить качество нашей работы
– стоимости работ
СКАЧАТЬ РАСЦЕНКИ
PDF, 12 страниц, 3.3 МБ
PDF
Актуально на 29 апреля 2025 года