Villa Lithos

Частная вилла | 283 м²

Данные

Тип объекта
Частная вилла
Площадь помещений
283 м²
локация
Крым, г. Симферополь, п. Лозовое
Площадь участка
9 соток
Команда проекта
Бойко С., Бусленко А., Кошарный П., Войнов С., Шолян А.
СТАТУС
Проект
Акварельный скетч

Пожелания клиента

Этот проект — вторая версия дома, разработанная для клиента. Первая концепция оказалась довольно масштабной, и спустя год было принято решение пересмотреть площадь и стилистику, сделав архитектуру более лаконичной.
Клиент стремился к современному, спокойному дому с ясной структурой и минималистичной выразительностью. Важно было сохранить простор внутри, но при этом уйти от избыточного масштаба, сделав акцент на комфорте.

Наше решение

Мы интегрировали здание в рельеф так, чтобы использовать уклон в пользу проекта: дом стал частью ландшафта, а не противопоставлением ему.
Неровности участка позволили избежать размещения массивных подпорных стен: сам дом работает с рельефом, врезаясь в склон и формируя ровную придомовую территорию. Такое решение позволило не только оптимизировать благоустройство, но и задать выразительную посадку здания.

Дом разместили так, чтобы он логично раскрывался к лесу и приватной части участка, а ключевые зоны ориентированы на наиболее живописные ракурсы.

Форма

Форма дома построена на простом, но выразительном приёме — наложении объёмов.
Композиционно здание состоит из двух прямоугольных параллелепипедов, поставленных друг на друга. Такое решение позволило добиться визуальной стройности и при этом подчеркнуть этажность, разделённую по функциям.

Верхний объём немного нависает над нижним, образуя легкий вынос — этот сдвиг формирует характерный силуэт, придаёт архитектуре динамику и позволяет создавать тени, подчеркивающие графику фасадов.

Фактуры

Мы стремились к выразительной, но сдержанной архитектуре, построенной на контрасте фактур.
На первом этаже использовали бутовый камень с бесшовной кладкой — тёплый, живой материал с ярко выраженной фактурой. Он придаёт дому основательность.

Второй этаж выполнен из крупноформатного керамогранита светлого оттенка с текстурой травертина — светлый объём как бы парит над массивным основанием.

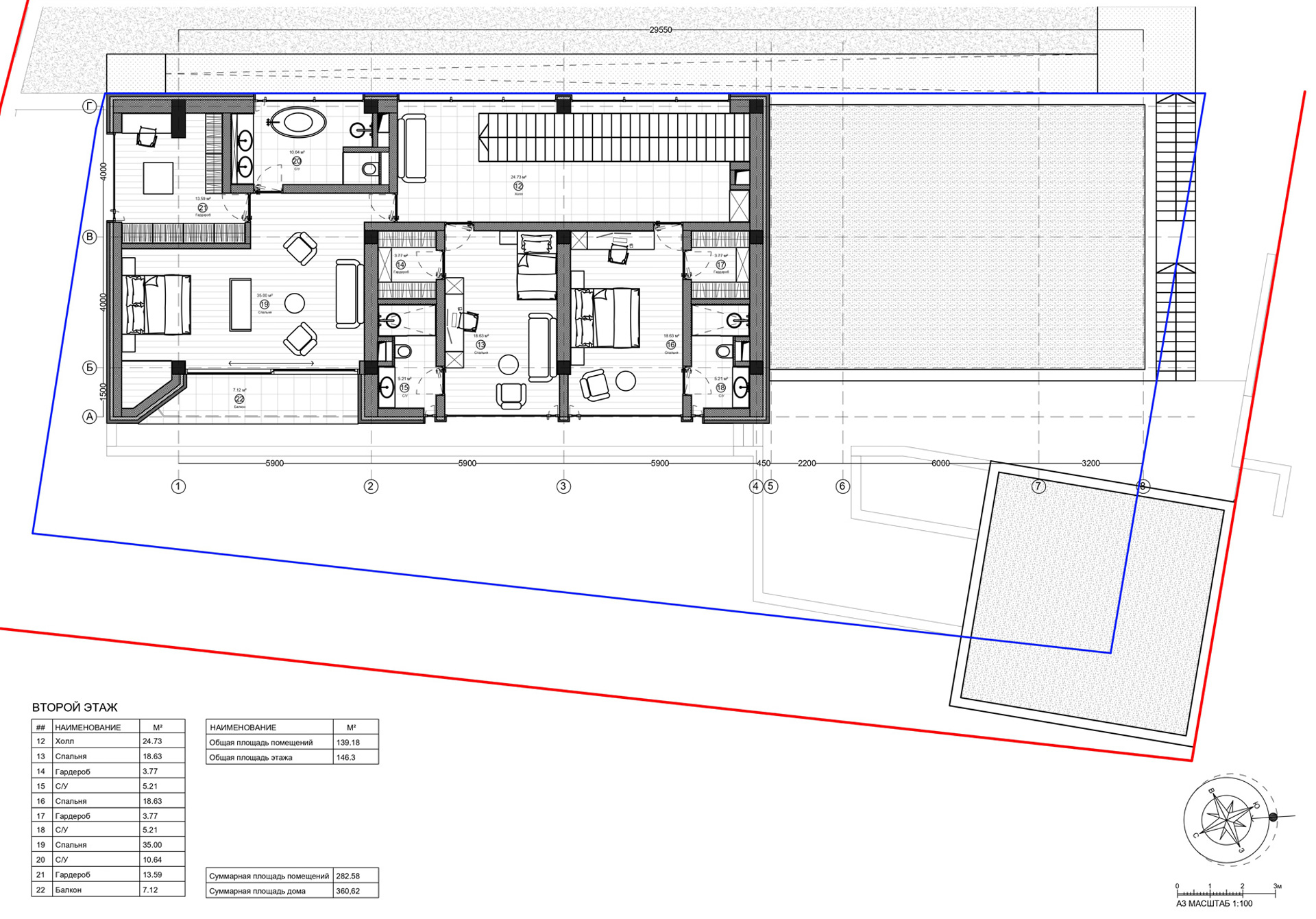
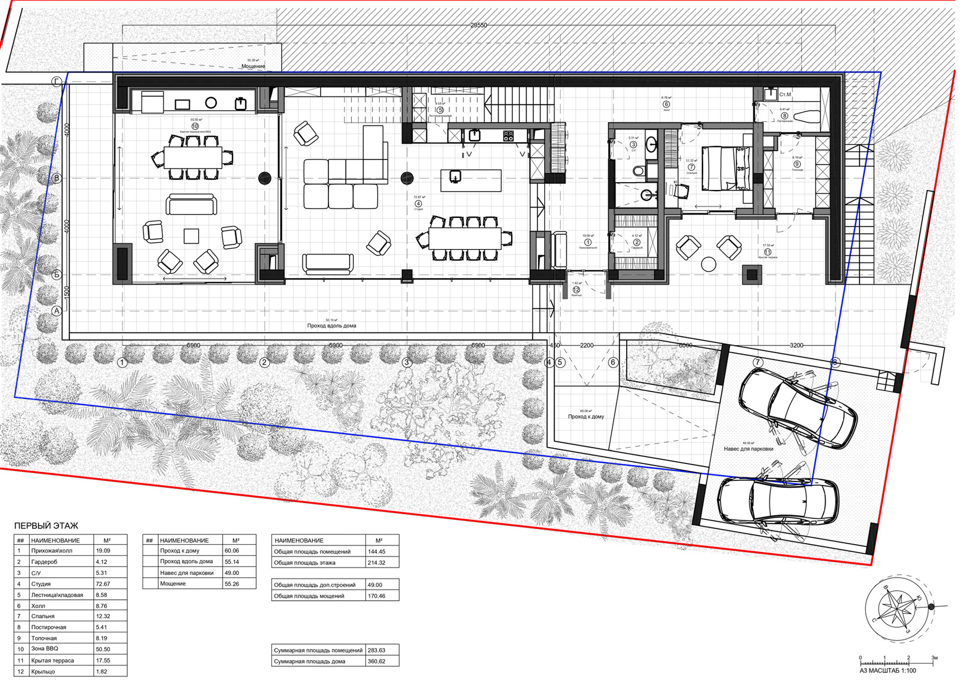
Планировки

Функция подчинена комфорту, а планировка — простоте и логике перемещения.
Этажность позволила разделить дом на приватную и общественную части. Первый этаж — это кухня-столовая и гостиная с выходом на веранду, а также гостевая спальня и технические помещения. Второй этаж отведён под мастер-спальню и две детские комнаты, каждая из которых имеет собственный санузел и гардеробную.
Другие проекты
Скачайте расценки проектирования и постройки дома
– таблицы с подробным описанием этапов проектирования
– примеры реализованных разделов, чтобы вы могли оценить качество нашей работы
– стоимости работ
СКАЧАТЬ РАСЦЕНКИ
PDF, 12 страниц, 3.3 МБ
PDF
Актуально на 29 апреля 2025 года