villa rakodia

Частная вилла | 644 м²

Данные

Тип объекта
Частная вилла
Площадь помещений
644 м²
локация
Крым, г. Симферополь, с. Мирное
Площадь участка
16 соток
Команда проекта
Бойко С., Бусленко А., Кошарный П., Войнов С., Шолян А.
СТАТУС
Проект

Пожелания клиента

Дом должен был стать личным пространством для семьи, где каждая зона отвечает за комфорт, уединение и эстетику.
Клиент хотел просторный дом в современном стиле хай-тек с двумя мастер-спальнями, каждой со своим санузлом и гардеробом, отдельной кухней и объединённой гостиной-столовой с несколькими диванными группами. Также в числе пожеланий — наличие второй гостиной на втором этаже и полноценной зоны для детей.

При этом дом должен быть визуально лёгким, несмотря на свою площадь, и максимально приватным — в условиях плотной городской застройки и открытого со всех сторон участка.

Наше решение

Каждое архитектурное решение в этом проекте стало ответом на ограничения участка и амбиции клиента.
Небольшая площадь участка, плотная окружающая застройка и прохождение ЛЭП потребовали особой точности в определении места под застройку. Мы разместили дом ближе к задней границе, чтобы отступить от кабеля и создать уединённое внутреннее пространство.

Чтобы избежать избыточности, мы сознательно отказались от второстепенных помещений, оставив в проекте только необходимое. Так удалось сохранить масштаб, гармоничный для человека, при этом уложившись в желаемую площадь.

Форма

Архитектура дома строится на чёткой геометрии и выразительной пластике, подчеркивающей современный характер здания.
Дом имеет почти квадратную форму с вырезами под входную группу и террасу, что делает его силуэт узнаваемым и динамичным. Такое решение позволило грамотно организовать внутренние пространства и сохранить компактность пятна застройки.

Консоли стали ключевым приёмом: они формируют навесы, создают тень и визуально «разгружают» массив. Благодаря им здание не выглядит тяжеловесным и кажется парящим над участком.

Фактуры

Фасадные решения подчёркивают лёгкость и чистоту архитектурного образа, не теряя при этом в выразительности.
Объём второго этажа облицован светлыми фиброцементными панелями, которые хорошо играют на свету и визуально облегчают структуру. Контрастные элементы и большие панорамные окна добавляют динамики и воздушности.

В благоустройстве использованы натуральные материалы — каменные плиты, хвойные и плодовые деревья, плотные зелёные посадки по периметру. Всё это помогает создать ощущение уединённого и обжитого пространства, несмотря на городскую среду.

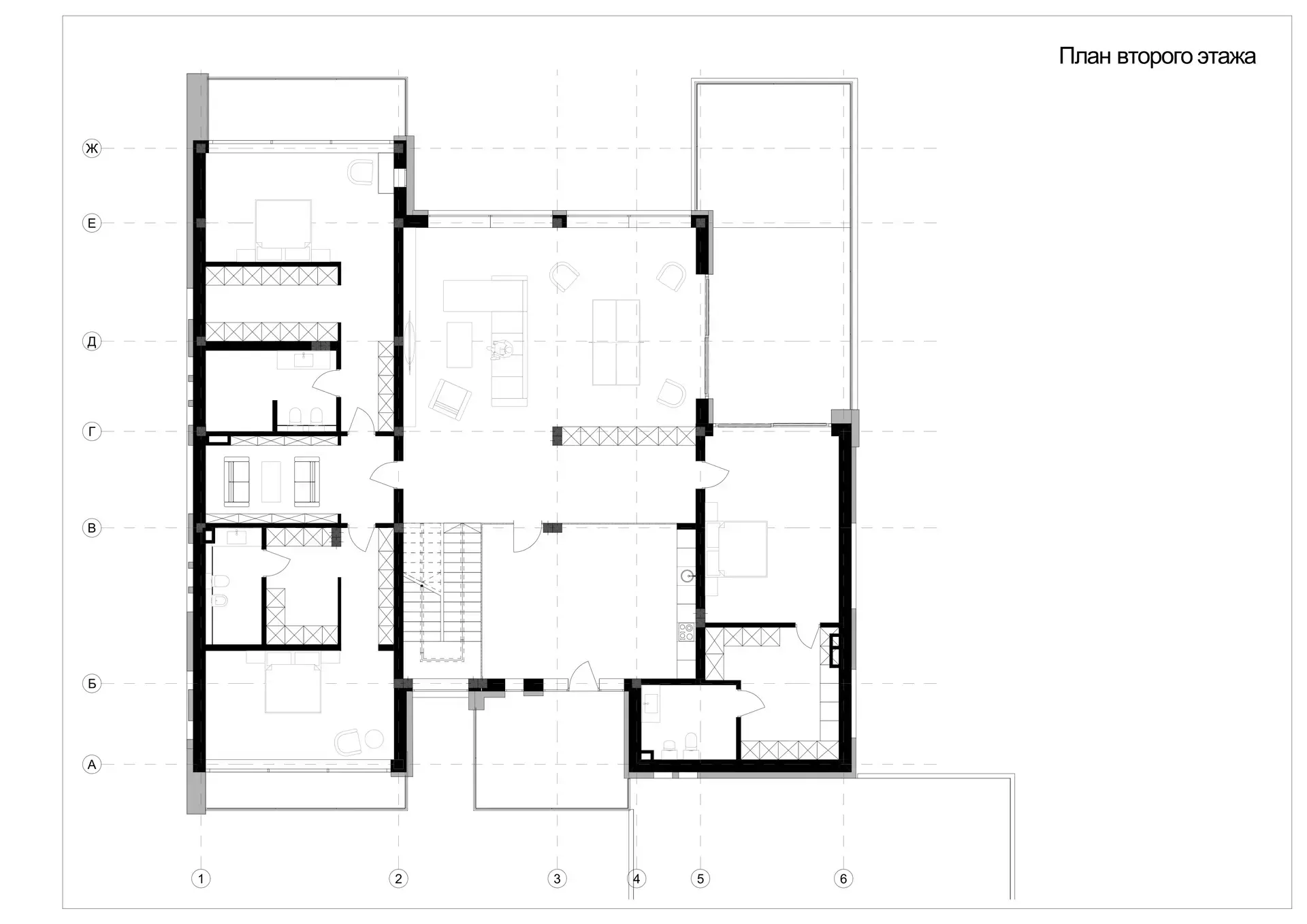
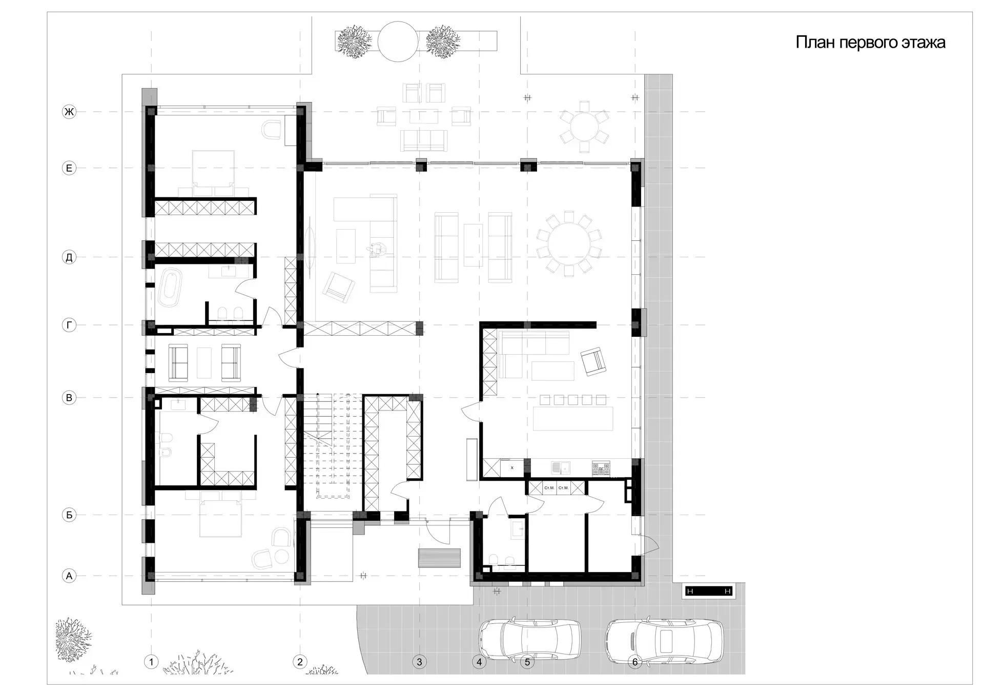
Планировки

Планировка дома создавалась как сценарий повседневной жизни — от приватности к открытости, от дороги к саду.
От парковки гостей встречает парадное крыльцо с широкими панорамными дверями. Холл ведёт в просторную студийную зону, включающую столовую, ТВ-группу и зону отдыха, а также даёт доступ к гардеробной, техпомещению и лестнице.

Кухня — отдельное, уединённое пространство с собственным обеденным уголком и проходом в гостиную. На первом этаже — две хозяйские спальни, на втором — две детские и одна гостевая, каждая со своей приватной инфраструктурой, а также дополнительная гостиная для семейного отдыха.
Другие проекты
Скачайте расценки проектирования и постройки дома
– таблицы с подробным описанием этапов проектирования
– примеры реализованных разделов, чтобы вы могли оценить качество нашей работы
– стоимости работ
СКАЧАТЬ РАСЦЕНКИ
PDF, 12 страниц, 3.3 МБ
PDF
Актуально на 29 апреля 2025 года