gorun

Частная вилла | 422 м²

Данные

Тип объекта
Частная вилла
Площадь помещений
422 м²
локация
Крым, г. Симферополь, с. Мирное
Площадь участка
41 сотка
Команда проекта
Бойко С., Бусленко А., Кошарный П., Войнов С., Шолян А.
СТАТУС
Проект

Пожелания клиента

Проект дома разрабатывался для большой семьи, ценящей комфорт, современные технологии и открытые пространства.
Основное пожелание заказчика заключалось в создании дома, который бы объединил в себе актуальные архитектурные тенденции: большие панорамные окна, выносные консольные конструкции, плоскую кровлю и двухсветное пространство. Особое внимание уделялось зоне гостиной и столовой — она должна быть общей, просторной и светлой, с максимальной связью с окружающей природой.

Наше решение

Проект создан в современном стиле с ярко выраженными архитектурными акцентами.
Дом расположен на участке с небольшим перепадом высот и без зелёных насаждений, что дало возможность свободной композиции и ориентации здания. Объём дома разбит на функциональные блоки, один из которых — мастер-блок — отделён от остального пространства мостом, проходящим через двухсветную зону.

Ломанная форма здания позволила использовать деформационные швы, что особенно важно для сейсмоопасных регионов — они перераспределяют нагрузку и повышают безопасность.

Форма

Форма дома динамична и подчёркнута выносными архитектурными элементами.
Центральным композиционным решением стало разделение объёма вторым светом, который выступает связующим, но в то же время визуально разграничивающим элементом. Мастер-блок «нависает» и соединяется с основным телом здания через мост, создавая выразительную архитектурную линию.

Ломанная геометрия объёма диктует ритм всей композиции, при этом обеспечивая зонирование и гибкость планировочных решений.

Фактуры

Основной фасадный материал — белые вентилируемые панели, подчёркивающие чистоту линий и геометрию здания.
Фасады дополнены панорамными окнами, усиливающими эффект лёгкости и открытости. Одним из нестандартных решений стала искусственная скала, обыгрывающая техническую необходимость — она скрывает колонну и канал от нависающего элемента, одновременно создавая ощущение природного происхождения этой конструкции. Ключевая деталь фасада — мастер-блок, визуально «парящий» над каменной скалой — создаёт архитектурный акцент и запоминающийся образ.

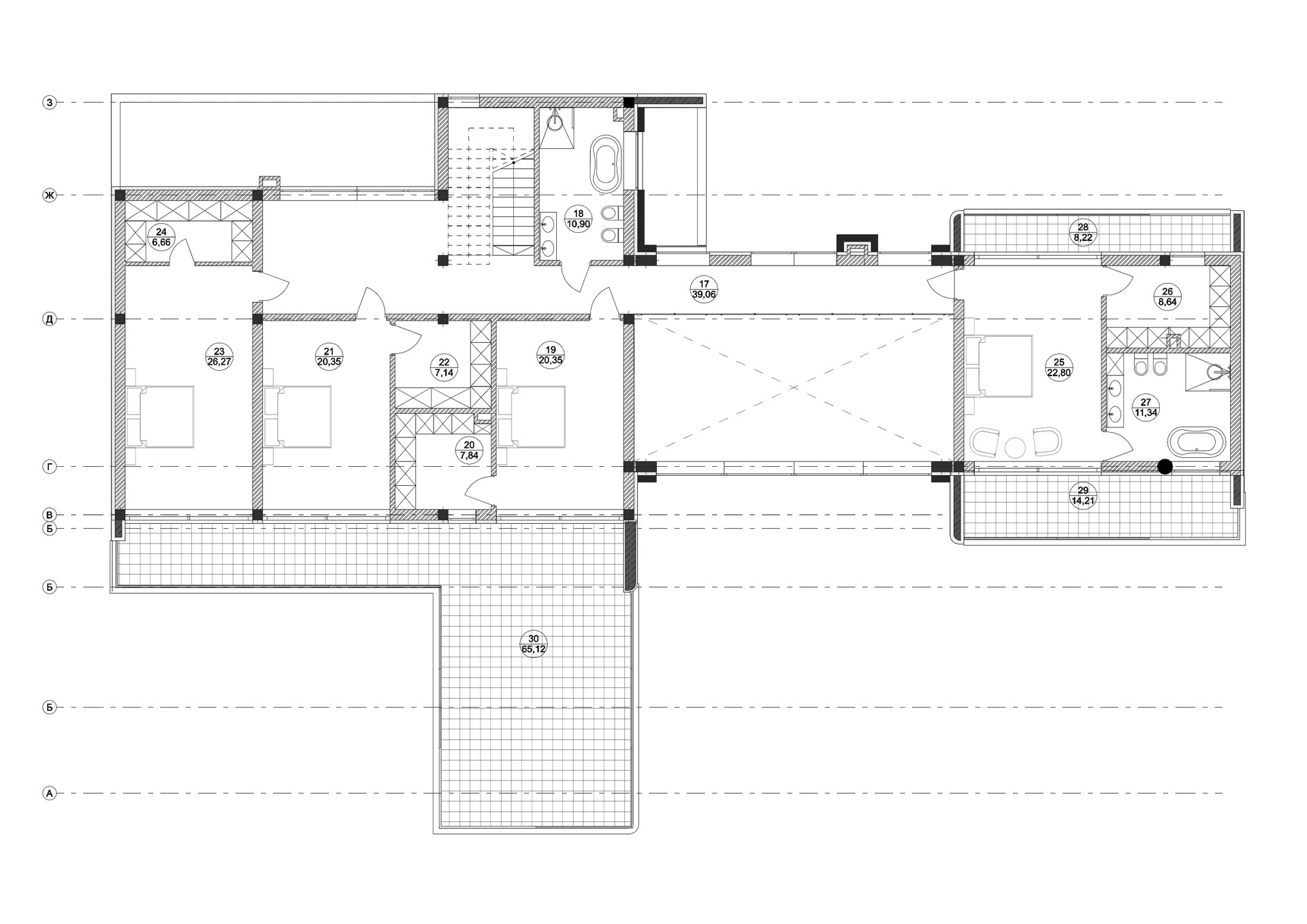
Планировки

Планировка строится вокруг объединённого общественного пространства с гостиной и столовой, раскрытой в сторону участка через двухсветное остекление.
Кухня с островом спроектирована в отдельном помещении, но в непосредственной близости от столовой. При кухне предусмотрена кладовая для хранения продуктов и инвентаря.

Входная зона включает в себя просторный гардероб и общий санузел. В отдельном блоке, рядом со входной группой, расположены кабинет и спортзал. Все помещения взаимосвязаны и логично организованы, создавая комфортную и функциональную среду для жизни большой семьи.
Другие проекты
Скачайте расценки проектирования и постройки дома
– таблицы с подробным описанием этапов проектирования
– примеры реализованных разделов, чтобы вы могли оценить качество нашей работы
– стоимости работ
СКАЧАТЬ РАСЦЕНКИ
PDF, 12 страниц, 3.3 МБ
PDF
Актуально на 29 апреля 2025 года